📞 +48 728 381 470
✉️ jmtinvestmentswroc@gmail.com
JMT INVESTMENTS
🏠 Nowoczesne domy w Lisowicach

Twoje wymarzone mieszkanie już na Ciebie czeka

Odkryj nowoczesne domy w spokojnej okolicy Lisowic. Każdy z naszych domów został zaprojektowany z myślą o komforcie, funkcjonalności i harmonii z otaczającą przyrodą.

Od
Cena od 399 000 zł
Skontaktuj się z nami
🏘️ Dostępne nieruchomości

Wybierz swoje wymarzone mieszkanie

Oferujemy cztery nowoczesne mieszkania o przemyślanej architekturze. Każdy z nich został zaprojektowany z myślą o komforcie i funkcjonalności.

Mieszkania A2,B2,C2,D2 - Nowoczesny dom w Prochowicach

Mieszkania A2,B2,C2,D2

7227,03 zł brutto/m²
📐 54,83 m²
🏠 3 pokoje
🚗 Parking

Nowoczesny mieszkanie o powierzchni 54,83 m² z funkcjonalnym rozkładem pomieszczeń. Idealny dla rodziny, oferuje komfort i wygodę w pięknej okolicy Lisowic. Piętro

Zalety:

  • Miejsce postojowe w cenie
  • Ogródek w cenie
  • Własny balkon
Mieszkania A1,B1,C1,D1 - Nowoczesny dom w Prochowicach

Mieszkania A1,B1,C1,D1

7401,37 zł/m²
📐 55,26 m²
🏠 3 pokoje
🚗 Parking

Nowoczesny mieszkanie o powierzchni 55,26 m² z funkcjonalnym rozkładem pomieszczeń. Idealny dla rodziny, oferuje komfort i wygodę w pięknej okolicy Lisowic. Parter

Zalety:

  • Miejsce postojowe w cenie
  • Ogródek w cenie
Podwórko: Każdy dom posiada własne podwórko z miejscem postojowym w cenie
Harmonogram: Planowane zakończenie budowy w sierpniu 2025
📐 Rzuty mieszkań

Poznaj rozkład pomieszczeń

Sprawdź szczegółowe rzuty każdego z mieszkań. Przemyślany układ pomieszczeń zapewnia maksymalną funkcjonalność i komfort użytkowania.

Parter - mieszkania A1, B1, C1, D1

🏠 Powierzchnia całkowita:
2 kondygnacje
Rzut Mieszkania A1/B1/C1/D1 - parter

Mieszkania A1/B1/C1/D1 - parter

Powierzchnia: 55,26 m²
Rozkład pomieszczeń:
Sypialnia x m2
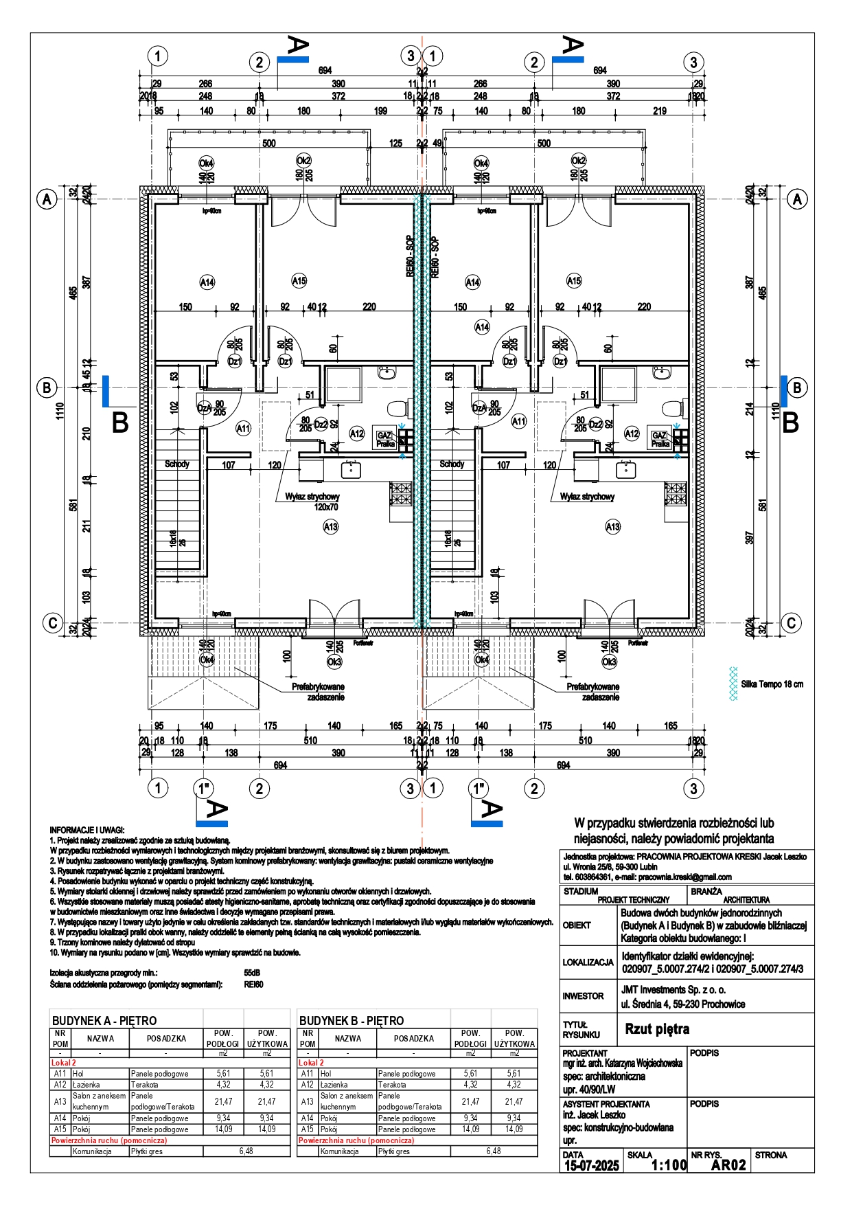
Rzut Piętro - mieszkania A2, B2, C2, D2

Piętro - mieszkania A2, B2, C2, D2

Powierzchnia: 54,83 m²
Rozkład pomieszczeń:
Sypialnia x m2

Informacje dodatkowe

Wysokość pomieszczeń: 2.55 - 2.70 m
Materiał ścian: Zgodnie z prospektem informacyjnym
Dach: Dwuspadowy, pokryty dachówką
📄 Dokumentacja inwestycji

Prospekt informacyjny

Pobierz kompletny prospekt informacyjny zawierający wszystkie szczegóły dotyczące naszej inwestycji. Znajdziesz w nim plany, specyfikacje techniczne oraz informacje prawne.

📥 Pobierz prospekt PDF

Co znajdziesz w prospekcie?

Kompletne informacje o inwestycji
Szczegółowe dane techniczne
Harmonogram realizacji
Informacje prawne i finansowe
Specyfikacja techniczna domów
Plan zagospodarowania terenu

Deweloper:

JMT INVESTMENTS SP. Z O.O.
KRS: 0001040502
NIP: 8992962484
REGON: 525513339
Średnia 4, 59-230 Prochowice, Polska

📅 Harmonogram realizacji

1

Etap I

(25%)
Do 01 lutego 2025

Uzyskanie pozwoleń, prace przygotowawcze, ogrodzenie terenu

📍

Lokalizacja inwestycji

Lipnice
działka nr 132/4 o powierzchni 971 m²
Księga wieczysta: LElL/00109353/9
📍 Lokalizacja

Doskonała lokalizacja

Prochowice to spokojne miasteczko położone w malowniczej okolicy Dolnego Śląska. Doskonała komunikacja z większymi miastami oraz bliskość natury sprawiają, że to idealne miejsce na życie.

Co znajdziesz w okolicy

🛒

Sklepy i usługi

500m

Centrum handlowe, apteka, poczta

Zalety lokalizacji:

  • Spokojna, bezpieczna okolica
  • Dobra komunikacja z większymi miastami
  • Bliskość natury i terenów rekreacyjnych
  • Rozwijająca się infrastruktura
📞 Skontaktuj się z nami

Zostańmy w kontakcie

Masz pytania o nasze domy? Chcesz umówić się na prezentację? Skontaktuj się z nami już dziś. Chętnie odpowiemy na wszystkie Twoje pytania.

📞 Kontakt bezpośredni

📞
📍
Adres
Średnia 4, 59-230 Prochowice, Polska

🕒 Godziny pracy

Pon-Pt 8:00-17:00
Sob 9:00-14:00
Zakończone inwestycje

Nasze zrealizowane projekty

Zobacz inwestycje, które już cieszą mieszkańców. Każdy projekt to potwierdzenie naszej dbałości o jakość i terminowość.